ARTI STAR - Catenary - Line Voltage - LED COB
(formerly ArtiStar Integral 10W Catenary / CY-AR-LED-TR)




Downloads
Configure Product
Download as configured
NOTE: Please configure the LEFT column found below to activate these download links.
Date:
Project:
Type:
AR-
01
CA-
02
LID-
03
LCB-
04
___-
05
___-
06C
___-
07
___-
08
___-
09
___-
10A
___-
10B
WL00-
11
___-
12
WC-AR-
13
Click options to build your configurationCompleting the first column to render configured product images below

01 SERIES
02 CATEGORY
03 DRIVER
04 LIGHT SOURCE (TYPE)
05 MATERIAL
06C STYLE
07 LIGHT SOURCE
08 OPTIC
09 CONTROL
10A LENS
10B SHIELDING
11 WIRING LENGTH
12 FINISH
Standard Finishes
, , , , , , , Premium Finishes
, , , , , , , , , , , , , , , , , Other - RAL
Other - Custom Color
Brass Finishes
, , Stainless Steel Finishes
, 13 OPTION
- Light Source
- Technical
- Finishes
- Options
Light Source
Optic
Beam Angle
CCT (K)
CRI
Input Power (W)
Delivered Lumens (Lm)
CBCP
MacAdam Ellipses (SDCM)
Operating Current (mA)
L70 (Hours)
L90B10 (Hours)
IES File
IES Pdf
Diagram CONE
x55
FL - Flood
60
2700
90
10
350
50000
x55
SP - Spot
60
2700
90
10
350
50000
x55
WFL - Wide Flood
60
2700
90
10
350
50000
x56
FL - Flood
60
3000
90
10
350
50000
x56
SP - Spot
60
3000
90
10
350
50000
x56
WFL - Wide Flood
60
3000
90
10
350
50000
x57
FL - Flood
60
3500
90
10
350
50000
x57
SP - Spot
60
3500
90
10
350
50000
x57
WFL - Wide Flood
60
3500
90
10
350
50000
Features

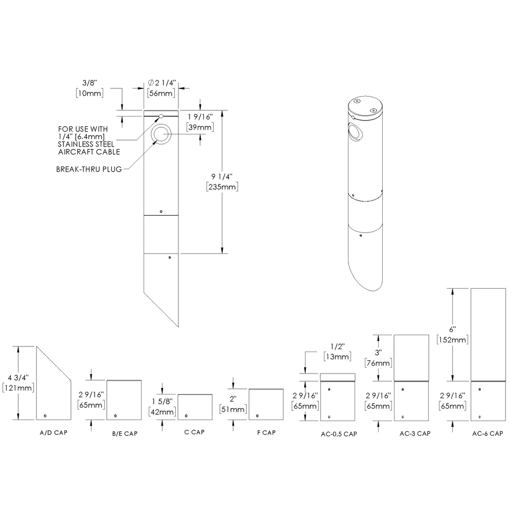
Anti-condensation vent allows moisture to exit the fixture but never enter in

Water-tight break-thru plug allows cable to run through fixture body while keeping moisture out

Lens factory adhered to fixture cap providing hermetically sealed optical compartment

Manufactured in the USA with sustainable processes

Secured with tamper-resistant, stainless steel hardware

Easily replaceable modular components reduce waste and extend fixture life
Slip fit cap & high temp. silicone 'O' ring provides reliable water-tight seal

Solid billet fixture body provides unmatched durability and heat management






